Rimak Construction Group Loading

ANDERSON CREEK

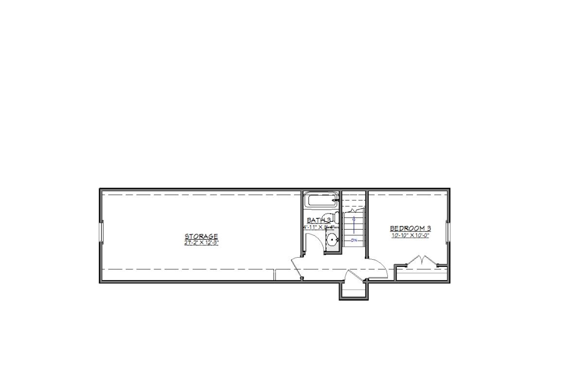
  • Size 1,707sq ft
  • Bedrooms 3
  • Bathrooms 3
  • Garage Two Car

Description

This thoughtfully designed home blends modern comfort with timeless charm. Featuring an open-concept great room, spacious kitchen with island, and inviting dining area, it’s perfect for everyday living and entertaining. The private primary suite offers a relaxing retreat, while additional bedrooms provide flexibility for family or guests. A large storage space upstairs adds an opportunity for a future finished bonus space, and the connected garage and mudroom enhance convenience. Classic exterior details and a welcoming porch complete this beautifully balanced home.

"All of our home plans are customizable from the floor plan to the exterior design - to help make your custom home your dream home. Please contact us today to add your very own custom features to this home plan!"