Rimak Construction Group Loading

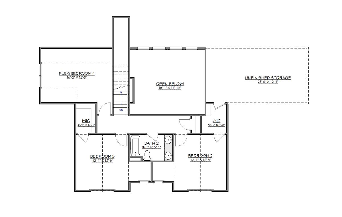
EAGLE POINT

  • Size 3,152sq ft
  • Bedrooms 4
  • Bathrooms 3
  • Garage Two Car

Description

This thoughtfully designed home features a spacious two-story vaulted great room filled with natural light, creating an open, airy centerpiece. The first-floor recreation room offers flexible use, ideal as a private home business office. With a seamless flow between living, dining, and kitchen spaces, plus generous bedrooms and storage, this plan balances functionality, comfort, and modern living.

All of our home plans are customizable from the floor plan to the exterior design - to help make your custom home your dream home. Please contact us today to add your very own custom features to this home plan!