Rimak Construction Group Loading

LAKEWOOD

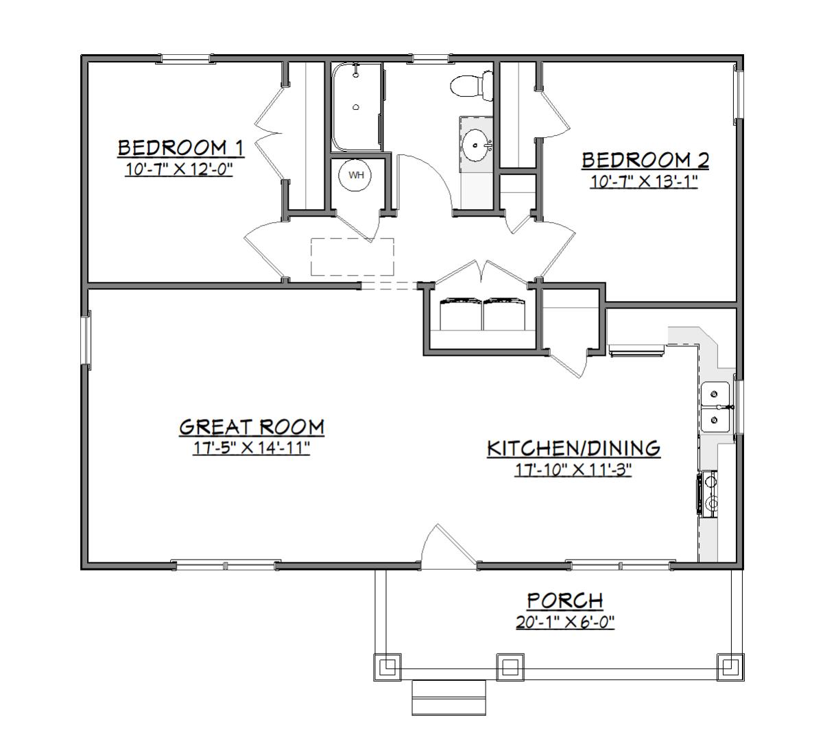
  • Size 1,008sq ft
  • Bedrooms 2
  • Bathrooms 1
  • Garage 0

Description

This compact two-bedroom home features an open great room flowing into a kitchen/dining area, a central bath, and a welcoming front porch. Its efficient layout maximizes space and comfort, making it ideal for a small family or an attractive, low-maintenance rental property.

 

All of our home plans are customizable from the floor plan to the exterior design - to help make your custom home your dream home. Please contact us today to add your very own custom features to this home plan!